Paper space viewports
The ALIGNSPACE command adjusts viewport angle, zoom factor and pan position based on alignment points specified in model space and paper space.
In a layout, you can create multiple viewports, each of which displays a unique view of the entities created in model space. Each layout viewport functions as a window into your model space drawing. You can control the view, scale, and content of each layout viewport separately.
A layout viewport is created as a separate entity that you can copy, delete, move, scale, and stretch as you would any other drawing entity. You can snap to the viewport borders using entity snap. When you are working in model space in layout, click any layout viewport to make it the current viewport, and then add or modify model space entities in that viewport. Any changes you make in one layout viewport are immediately visible in the other viewports (if the other layout viewports are displaying that portion of the drawing). Zooming or panning in the current viewport affects only that viewport.
Each viewport has its own layer visibility settings. You can also turn off the display of the content of a viewport.
To preserve the scaling of a viewport, you can lock the display. It is no longer possible to zoom or pan in a locked viewport.
Apart from viewports, you can add print-related entities in a paper space layout that are not essential to the model itself, such as keynotes, annotations, title blocks, etc. Such entities are part of a specific paper space layout and do not appear in other layouts or in model space.
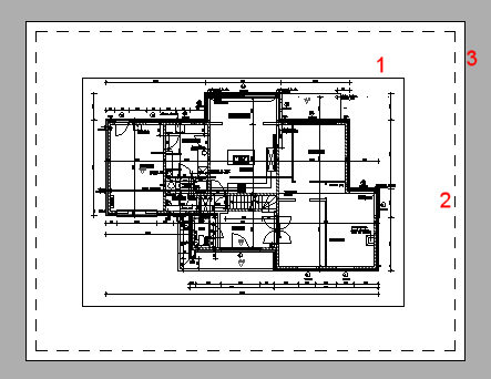
Displaying the paper sheet and the printable area

-
Viewport.
- Printable area.
The display of the printable area is controlled through the DISPPAPERMARGINS system variable.
- Paper sheet.
The display of the paper sheet is controlled through the DISPPAPERBKG system variable.

